Стоимость строительства дома предоставляется по запросу.

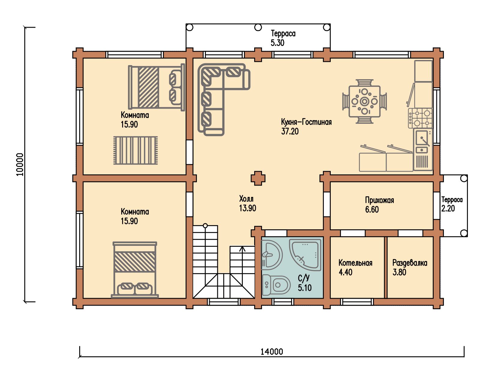
Планировка 1-го этажа |
Планировка 2-го этажа |
![]() |
![]() |




Строительство дома мечты, в котором вы проведете много счастливых лет, в одном телефонном звонке от вас.
Сделайте этот звонок. Это станет первым шагом к новому, светлому и радостному будущему.
Проект может быть переделан под ваши требования и пожелания.
Связаться с нами можно по телефонам:
+7 (495) 664-32-92,
+7 (926) 703-24-94
Также мы принимаем письма по электронной почте
info@info-dom.ru