
Стоимость домокомплекта снижена!
Скидка на строительство дома10%

Внимание! Проект дома может быть переделан под ваши требования и пожелания.
Планировка |
![]() |
Сильные стороны деревянного дома построенного по проекту WD-010:
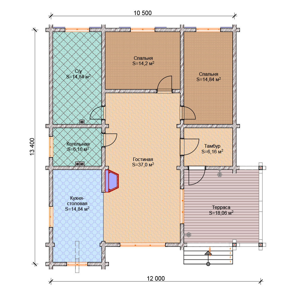
Этот проект приглянется ценителям одноэтажных деревянных домов.
Сочетая в себе удобство расположения и просторность помещений, деревянный дом обладает всем необходимым для круглогодичного проживания.

![]() |
Приветливая и «воздушная» терраса - это переходная зона между домом и садом. В летний период она станет своеобразным оазисом прохлады на загородном участке. Сразу за входной дверью находится тамбур 6м2, который служит тепловым шлюзом и экономит затраты на отопление. |

![]() |
Объединенная с гостиной кухня-столовая, площадью 14м2, делится на рабочую зону приготовления еды и зону столовой. По действующим сейчас правилам все помещения, предназначенные для длительного пребывания людей, должны иметь естественное освещение. Два окна в кухне полностью соответствуют этим нормам. |
|
Помещения деревянного дома, где используется водоснабжение и канализация практично расположены с одной стороны и граничат друг с другом, обеспечивая удобство подведения коммуникаций. Центром водонагревательного и отопительного оборудования служит котельная, площадью 6м2 |
![]() |

![]() |
Обратите внимание на санузел внушительных размеров, целых 14м2. В нем предусмотрено окно, не типичное для Российских планировок, которое позволяет сэкономить на освещении и вентиляции. Один из владельцев такого деревянного дома дополнил санузел инфракрасной сауной, при посещении которой усиливается метаболический обмен и происходит резкое усиление снабжения тканей всего организма кислородом. Это способствует повышению иммунитета и профилактике различных заболеваний. |
|
Сам по себе воздух в деревянном доме из профилированного бруса наполнен фитонцидами хвойных пород, содержащимися в древесине, и он не только имеет приятный запах, но и благотворно влияет на здоровье людей. Известно, что дерево регулирует температурный режим в доме: зимой хорошо сохраняет тепло, а летом в деревянных домах прохладно. |
![]() |
![]() |
При желании построить по этому проекту дом из клееного бруса – мы предоставим вам сертификат соответствия на брус и санитарно-эпидемиологическое заключение на безопасность используемого Клея. |

|
К проекту деревянного дома прилагается схема отопления с расчетом показателей для подбора отопительного котла, насосов и радиаторов (батарей). |
![]() |
![]() |
Наши специалисты по водоподготовке и водоочистки при необходимости проведут анализ воды, расчет и подбор оборудования для обеспечения дома питьевой, холодной и горячей водой и отвода воды в септик. Разработают проект дренажа и утилизации сточных вод. |
Основные технико-экономические показатели:

![]() |
Площадь застройки: 144,17 м2 Общая площадь: 126,1 м2 Площадь первого этажа: 126,1 м2 |
|
Фундамент: Свайно-винтовой Возможна замена на монолитный железобетонный ростверк, монолитную плиту. |
![]() |
![]() |
Кровля:
|
Фасад - 1 |
Фасад - 2 |
![]() |
![]() |
Фасад - 3 |
Фасад - 4 |
![]() |
![]() |
Строительство дома мечты, в котором вы проведете много счастливых лет, в одном телефонном звонке от вас.
Сделайте этот звонок. Это станет первым шагом к новому и радостному будущему.
В стоимость не включены расходные и сопутствующие материалы, монтаж, организация проживания рабочих и технический надзор.
Проект может быть переделан под ваши требования и пожелания.
Связаться с нами можно по телефонам:
+7 (495) 664-32-92,
+7 (926) 703-24-94
Также мы принимаем письма по электронной почте
info@info-dom.ru